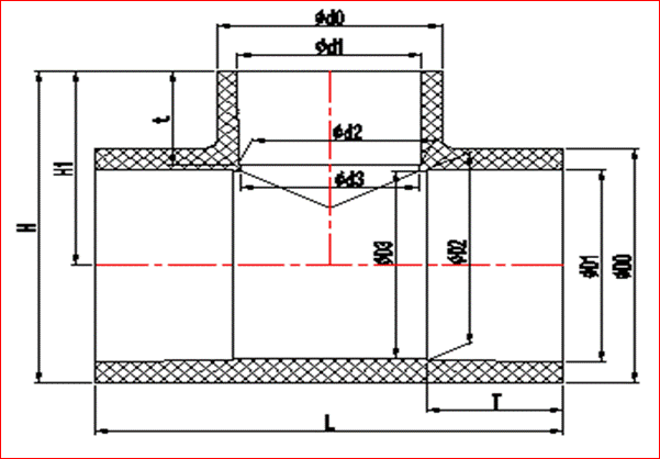
| Size (De) | Dimension(mm) |
| D0 | D1 | D2 | D3 | d0 | d1 | d2 | d3 | t | T | H1 | H | L |
| 25*20 | 30.02 | 25.24 | 24.95 | 24.00 | 24.18 | 20.24 | 19.96 | 19.00 | 17.00 | 19.50 | 31.00 | 46.01 | 62.10 |
| 32*20 | 37.44 | 32.25 | 31.95 | 31.00 | 24.74 | 20.24 | 19.96 | 19.00 | 17.00 | 23.00 | 34.50 | 53.22 | 69.20 |
| 32*25 | 37.44 | 32.25 | 31.95 | 31.00 | 30.10 | 25.24 | 24.95 | 24.00 | 19.50 | 23.00 | 37.00 | 55.72 | 73.80 |
| 40*20 | 46.30 | 40.28 | 39.95 | 39.00 | 25.40 | 20.24 | 19.96 | 19.00 | 17.00 | 27.00 | 38.50 | 61.65 | 77.30 |
| 40*25 | 46.30 | 40.28 | 39.95 | 39.00 | 30.05 | 25.24 | 24.95 | 24.00 | 19.50 | 27.00 | 41.00 | 64.15 | 80.40 |
| 40*32 | 46.30 | 40.28 | 39.95 | 39.00 | 37.44 | 32.25 | 31.95 | 29.00 | 23.00 | 27.00 | 44.50 | 67.65 | 89.00 |
| 50*20 | 57.20 | 50.33 | 49.94 | 49.00 | 25.00 | 20.24 | 19.96 | 19.00 | 17.00 | 32.00 | 43.50 | 72.10 | 86.00 |
| 50*25 | 57.72 | 50.33 | 49.94 | 49.00 | 30.05 | 25.24 | 24.95 | 24.00 | 19.50 | 32.00 | 46.00 | 74.86 | 92.00 |
| 50*32 | 57.80 | 50.33 | 49.94 | 49.00 | 37.50 | 32.25 | 31.95 | 31.00 | 23.00 | 32.00 | 49.50 | 78.40 | 98.70 |
| 50*40 | 57.10 | 50.33 | 49.94 | 49.00 | 47.02 | 40.28 | 39.95 | 39.00 | 27.00 | 32.00 | 53.50 | 82.05 | 108.40 |
| 63*20 | 70.00 | 63.34 | 62.93 | 62.00 | 24.90 | 20.24 | 19.96 | 19.00 | 17.00 | 38.50 | 50.00 | 85.00 | 100.00 |
| 63*25 | 70.10 | 63.34 | 62.93 | 62.00 | 30.20 | 25.24 | 24.95 | 24.00 | 19.50 | 38.50 | 52.50 | 87.55 | 105.00 |
| 63*32 | 70.80 | 63.34 | 62.93 | 62.00 | 37.50 | 32.25 | 31.95 | 31.00 | 23.00 | 38.50 | 56.00 | 91.40 | 112.00 |
| 63*40 | 70.30 | 63.34 | 62.93 | 62.00 | 45.80 | 40.28 | 39.95 | 39.00 | 27.00 | 38.50 | 60.00 | 95.15 | 119.85 |
| 63*50 | 70.80 | 63.34 | 62.93 | 62.00 | 56.50 | 50.33 | 49.94 | 49.00 | 32.00 | 38.50 | 65.00 | 100.40 | 130.60 |
| 75*32 | 84.30 | 75.35 | 74.93 | 73.50 | 38.20 | 32.25 | 31.95 | 31.00 | 23.00 | 44.50 | 61.75 | 103.90 | 125.75 |
| 75*40 | 84.10 | 75.35 | 74.93 | 73.50 | 46.60 | 40.28 | 39.95 | 39.00 | 27.00 | 44.50 | 65.75 | 107.80 | 135.70 |
| 75*50 | 84.00 | 75.35 | 74.93 | 73.50 | 57.00 | 50.33 | 49.94 | 49.00 | 32.00 | 44.50 | 70.75 | 112.75 | 153.50 |
| 75*63 | 83.80 | 75.35 | 74.93 | 73.50 | 70.70 | 63.34 | 62.93 | 62.00 | 38.50 | 44.50 | 77.25 | 119.15 | 156.60 |
| 90*50 | 100.70 | 90.38 | 89.93 | 88.50 | 56.70 | 50.33 | 49.94 | 49.00 | 32.00 | 52.00 | 78.25 | 128.60 | 158.00 |
| 90*63 | 100.70 | 90.38 | 89.93 | 88.50 | 69.70 | 63.34 | 62.93 | 62.00 | 38.50 | 52.00 | 84.75 | 135.10 | 170.30 |
| 90*75 | 100.70 | 90.38 | 89.93 | 88.50 | 84.10 | 75.35 | 74.93 | 73.50 | 44.50 | 52.00 | 90.75 | 141.10 | 183.00 |
| 110*50 | 123.00 | 110.42 | 109.92 | 108.00 | 56.30 | 50.33 | 49.94 | 49.00 | 32.00 | 62.00 | 88.00 | 149.50 | 177.00 |
| 110*63 | 122.70 | 110.42 | 109.92 | 108.00 | 74.00 | 63.34 | 62.93 | 62.00 | 38.50 | 62.00 | 94.50 | 155.85 | 190.10 |
| 110*75 | 121.32 | 110.42 | 109.92 | 108.00 | 84.30 | 75.35 | 74.95 | 73.50 | 44.50 | 62.00 | 101.50 | 162.16 | 201.50 |
| 110*90 | 121.50 | 110.42 | 109.92 | 108.00 | 100.60 | 90.38 | 89.93 | 88.50 | 52.00 | 62.00 | 109.00 | 169.75 | 220.40 |
| 125*75 | 136.50 | 125.52 | 124.93 | 123.00 | 84.30 | 75.35 | 74.95 | 73.50 | 44.50 | 69.50 | 109.00 | 177.25 | 219.50 |
| 125*90 | 137.80 | 125.52 | 124.93 | 123.00 | 99.20 | 90.38 | 89.93 | 88.50 | 52.00 | 69.50 | 116.50 | 185.40 | 232.30 |
| 125*110 | 136.00 | 125.52 | 124.93 | 123.00 | 120.60 | 110.42 | 109.92 | 108.00 | 62.00 | 69.50 | 125.75 | 193.75 | 250.70 |
| 140*110 | 151.50 | 140.58 | 139.88 | 138.00 | 108.70 | 110.42 | 109.92 | 108.00 | 62.00 | 77.00 | 134.00 | 209.75 | 268.00 |
| 160*90 | 175.30 | 160.62 | 159.87 | 158.00 | 101.60 | 90.38 | 89.93 | 88.50 | 52.00 | 87.00 | 134.00 | 221.65 | 268.00 |
| 160*110 | 175.40 | 160.62 | 159.87 | 158.00 | 122.30 | 110.42 | 109.92 | 108.00 | 62.00 | 87.00 | 144.00 | 231.70 | 288.00 |
| 160*125 | 175.30 | 160.62 | 159.87 | 158.00 | 137.00 | 125.30 | 124.93 | 123.00 | 69.50 | 87.00 | 151.50 | 239.15 | 300.00 |
| 160*140 | 175.10 | 160.62 | 159.87 | 158.00 | 153.00 | 140.30 | 139.88 | 138.00 | 77.00 | 87.00 | 159.00 | 246.55 | 318.50 |
| 180*160 | 202.60 | 180.81 | 179.91 | 178.50 | 180.00 | 160.35 | 159.87 | 158.00 | 87.00 | 97.00 | 180.00 | 281.30 | 379.00 |
| 200*75 | 220.90 | 180.81 | 199.85 | 197.00 | 82.75 | 75.35 | 74.93 | 73.50 | 44.50 | 107.00 | 148.50 | 258.95 | 291.50 |
| 200*90 | 220.90 | 200.90 | 199.85 | 197.00 | 99.20 | 90.38 | 89.93 | 88.50 | 52.00 | 107.00 | 156.00 | 266.45 | 307.00 |
| 200*110 | 219.20 | 200.90 | 199.85 | 197.00 | 122.80 | 110.42 | 109.92 | 108.00 | 62.00 | 107.00 | 166.00 | 275.60 | 328.00 |
| 200*160 | 219.80 | 200.90 | 199.85 | 197.00 | 175.40 | 160.62 | 159.87 | 158.00 | 87.00 | 107.00 | 191.00 | 300.90 | 377.00 |
| 225*160 | 246.00 | 226.02 | 224.83 | 221.00 | 175.00 | 160.62 | 159.87 | 158.00 | 87.00 | 119.50 | 203.00 | 326.00 | 407.00 |
| 250*110 | 272.00 | 251.15 | 249.41 | 247.00 | 120.50 | 110.42 | 109.92 | 108.00 | 62.00 | 132.00 | 191.00 | 327.00 | 377.00 |
| 250*160 | 270.00 | 251.15 | 249.41 | 247.00 | 173.00 | 160.62 | 159.87 | 158.00 | 87.00 | 132.00 | 216.00 | 351.00 | 427.00 |
| 250*200 | 274.10 | 251.15 | 249.41 | 247.00 | 220.00 | 200.90 | 199.85 | 197.00 | 107.00 | 132.00 | 236.00 | 373.05 | 474.00 |
| 280*250 | 314.80 | 281.46 | 280.16 | 278.00 | 280.00 | 251.15 | 199.85 | 247.00 | 132.00 | 147.00 | 276.00 | 433.40 | 580.00 |
| 315*110 | 344.50 | 316.55 | 315.05 | 312.00 | 125.75 | 110.42 | 109.92 | 108.00 | 62.00 | 165.00 | 223.50 | 395.75 | 448.00 |
| 315*160 | 344.50 | 316.55 | 315.05 | 312.00 | 178.60 | 160.62 | 159.87 | 158.00 | 87.00 | 165.00 | 248.50 | 420.75 | 498.00 |
| 315*200 | 344.50 | 316.55 | 315.05 | 312.00 | 220.90 | 200.90 | 199.85 | 197.00 | 107.00 | 165.00 | 268.50 | 440.75 | 538.00 |
| 315*250 | 344.50 | 316.55 | 315.05 | 312.00 | 273.40 | 251.15 | 225.83 | 247.00 | 132.00 | 165.00 | 293.50 | 465.75 | 588.00 |
| 355*200 | 386.50 | 356.63 | 355.03 | 326.00 | 219.90 | 200.90 | 199.85 | 197.00 | 107.00 | 183.50 | 285.50 | 478.75 | 590.50 |
| 355*225 | 386.50 | 356.80 | 355.00 | 326.00 | 259.40 | 226.20 | 224.90 | 216.90 | 184.00 | 118.70 | 298.50 | 491.60 | 615.00 |
| 355*250 | 386.50 | 356.63 | 355.03 | 326.00 | 273.40 | 251.15 | 249.41 | 247.00 | 132.00 | 183.50 | 311.50 | 504.75 | 638.50 |
| 355*315 | 386.50 | 356.63 | 355.03 | 326.00 | 344.50 | 316.55 | 315.05 | 312.00 | 165.00 | 183.50 | 350.60 | 543.85 | 694.50 |
| 400*200 | 432.70 | 401.60 | 400.00 | 398.50 | 220.90 | 200.90 | 199.85 | 197.00 | 107.00 | 208.00 | 318.60 | 534.95 | 623.00 |
| 400*250 | 432.40 | 401.60 | 400.00 | 398.50 | 273.50 | 251.15 | 249.41 | 247.00 | 132.00 | 208.00 | 342.80 | 559.00 | 672.00 |
| 400*315 | 432.70 | 401.60 | 400.00 | 398.50 | 344.50 | 316.55 | 315.05 | 312.00 | 165.00 | 208.00 | 370.00 | 586.35 | 752.00 |

Hot Tags: Paper Box Jewelry Gift Box, Manufacturers,
Suppliers,
Wholesale, Buy, Factory, Customized, Free Sample, China, Cheap, Newest, Quality,
Advanced